Liste des modèles
Maison modulaire Pomerania : de 22 à 86m² avec Mezzanine
Le Pomerania a été pensé pour ceux qui recherchent de généreux volumes et un espace de vie optimisé. Son bardage métallique à joint debout lui donne une esthétique contemporaine et garantit une excellente longévité sans entretien particulier. C'est la solution idéale pour une résidence principale confortable, un bureau spacieux ou un projet nécessitant de plus grandes surfaces.
Équipements du modèle Pomerania
- Structure et Isolation : Ossature en acier S355 galvanisé, protégée contre la corrosion et garantie 25 ans. Isolation haute performance en mousse polyuréthane (PUR) pour les murs, le toit et le sol, assurant un confort thermique optimal.
- Façade et Toiture : Bardage métallique à joint debout pour un design moderne et une longévité maximale, disponible en plusieurs coloris. Toiture à double pente, également garantie 25 ans.
- Finitions Intérieures : Murs intérieurs livrés prêts à finir (plaques de plâtre ou OSB), vous laissant le champ libre pour une décoration entièrement personnalisée.Murs intérieurs livrés prêts à finir (plaques de plâtre ou OSB), vous laissant le champ libre pour une décoration entièrement personnalisée.
- Menuiseries : Fenêtres en PVC double vitrage performantes et une porte d'entrée en acier, isolée et sécurisée, de couleur anthracite.
- Installations Techniques : Le module est livré avec une installation électrique complète (tableau, prises, interrupteurs) et une installation de plomberie prête à être raccordée.
Clé en Main
Passez au niveau supérieur avec l'option clé en main : Pour une tranquillité d'esprit absolue, choisissez notre finition "clé en main". Votre module Pomerania est alors livré entièrement meublé et équipé, prêt à vous accueillir. Installez-vous et profitez immédiatement de votre nouvel espace, nous nous occupons de tout.
Cuisine équipée et fonctionnelle
- Meubles de cuisine modernes avec plan de travail
- Plaque de cuisson à induction, four et hotte aspirante
- Réfrigérateur intégré et évier avec mitigeur
Salle de bain complète
- Cabine de douche spacieuse (80x80cm)
- Meuble vasque avec miroir et sèche-serviettes
- WC et chauffe-eau électrique 50L
Espace de vie et chambre confortables
- Canapé convertible et table basse
- Espace repas avec table et chaises
- Lits avec matelas, tables de chevet et armoires
- Climatisation réversible pour un confort toute l'année
Équipement du chalet POMERANIA - avec mobilier
En plus des équipements de la version standard, votre module est livré entièrement meublé et équipé. Installez-vous, tout est prêt !
Cuisine
- Meubles de cuisine design avec plan de travail
- Plaque de cuisson à induction
- Four encastré
- Réfrigérateur intégré
- Évier avec mitigeur
Salon
- Canapé convertible pour un couchage d'appoint
- Table basse moderne
- Meuble TV assorti
- Espace repas avec table et chaises
- Climatisation réversible (chaud/froid)
Salle de bain
Cabine de douche spacieuse (80x80cm)
Miroir
Meuble vasque suspendu
Sèche-serviettes électrique
WC compact
Chauffe-eau électrique 50l
Chambre
Lit double avec matelas confortable
Tables de chevet assorties
Armoire ou penderie de rangement
| Version Standard | Version Confort | Version Clé en main |
|---|---|---|
|
Équipements de la version Standard, plus :
|
Équipements de la version Confort, plus :
|
Informations communes à toutes les versions :
Réglementation : Maison habitable toute l'année (moins de 50m2) RE2020 : 150 mm
Service inclus : Livraison et déchargement dans toute la France métropolitaine
Garantie : 25 ans sur la structure, la toiture et l'isolation – 5 ans sur la façade et les fenêtres – 2 ans sur les autres éléments du bâtiment
| Modèle | GAMME BRUT | GAMME CONFORT | GAMME CLÉ EN MAIN |
|---|---|---|---|
| Pomerania 20 | 41490€ TTC | 44990€ TTC | 52990€ TTC |
| Pomerania 32 | 52990€ TTC | 59990€ TTC | 68490€ TTC |
| Pomerania 35 | 58990€ TTC | 66990€ TTC | 74990€ TTC |
| Pomerania 40 | 68990€ TTC | 77990€ TTC | 86490€ TTC |
| Pomerania 48 | 79990€ TTC | 90490€ TTC | 99490€ TTC |
| Pomerania 57 | 93990€ TTC | 106490€ TTC | 115490€ TTC |
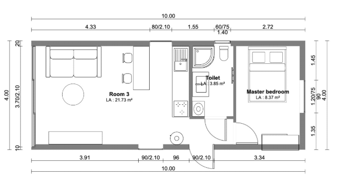
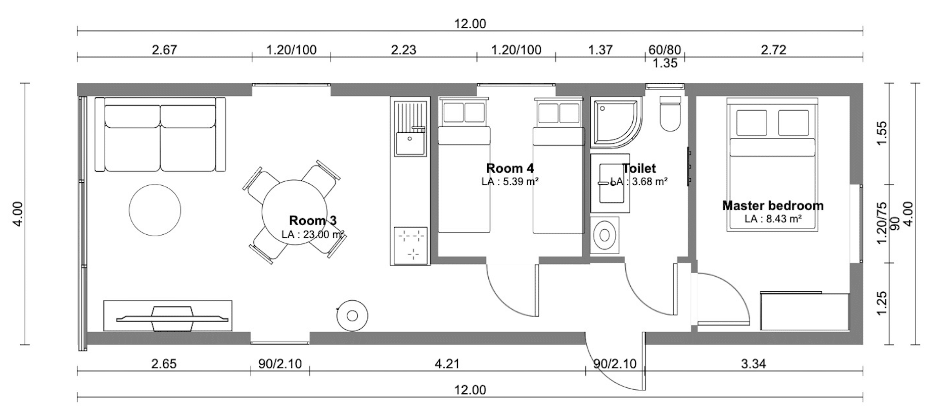
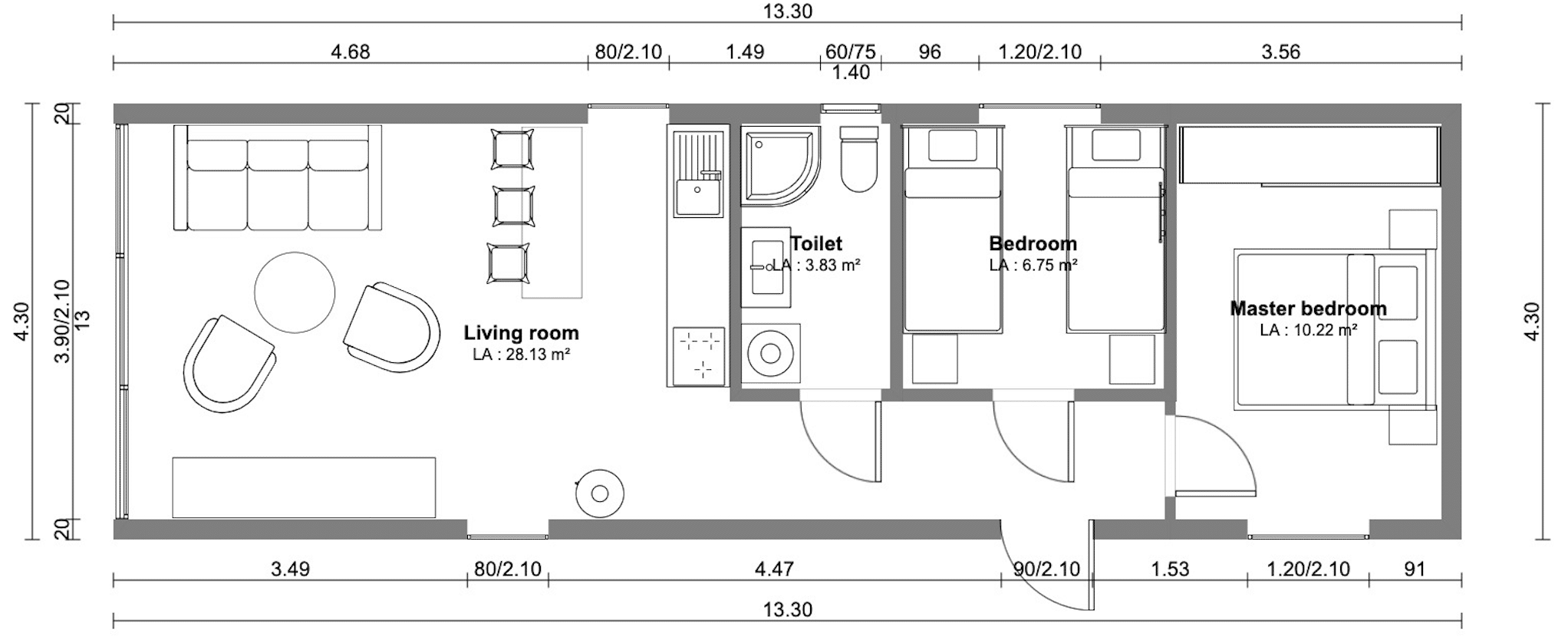
Exemple d'aménagement intérieur
Modèles POMERANIA disponibles
Découvrez nos autres produits

Maison Posnania

Maison Rosevia

Maison Silesia
Discutons de votre projet
Notre équipe est à votre disposition
















































